The more you know
Projects We Have Delivered


Tulip Hill Group Housing
Tulip Hill Group Housing is a major residential project located at Balliwala Chowk, Dehradun, featuring basement, stilt, and 9 floors with an approximate area of 150,000 square feet at the heart of the city.
Location: Balliwala Chowk, Dehradun
Structure: Basement + Stilt + 9 Floors
Area: ~150,000 sq ft
Type: Residential group housing






Sterling GK Exotica Hotel
Sterling GK Exotica, is a hotel situated at 354 Gha, HCL Compound, Niranjanpur on Saharanpur Road, Dehradun with a configuration of basement, stilt, and 6 floors, and covers around 60,000 square feet.
Location: 354 Gha, HCL Compound, Niranjanpur, Saharanpur Road, Dehradun, 248001
Structure: Basement + Stilt + 6 Floors
Area: ~60,000 sq ft
Type: Hotel property
Situated within the HCL Compound


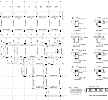
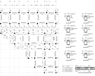
Resizone Paradise
Resizone Paradise, located in Dehradun, Uttarakhand, is a large-scale structural design project with a covered area of 96,300 sq. ft, handled by ATC using advanced methodologies and software for optimization and safety. The project consists of a basement plus 10 storeys, and features an expansion joint to separate two structures for improved durability and seismic performance, especially important in Seismic Zone IV.
Location: Dehradun, 248001
Structure: Basement + Ground + 10 floors.
Area: 96,300 sq. ft.
Type : Residential
Expansion Joint: Separates two main building sections.
Seismic Design: Engineered for Zone-IV seismic standards.




Kendriya Vidyalaya RCC Design – Dalgaon, Assam
The design scope included the RCC structural engineering for Kendriya Vidyalaya, with particular attention to the seismic risks of the region. Dalgaon falls in Seismic Zone-V, which imposed strict requirements for earthquake-resistant design due to the building's importance factor as an educational institution.
Location: Dalgaon, Assam
Date: September 2022
Client: CPWD
Area: 78,000 sq.ft covered area
Vetted by: IIT Guwahati
Neuve Healthcare Pharmaceuticals
The Neuve Healthcare Pharmaceuticals facility in Roorkee, Uttarakhand, designed and built in October 2023, spans a substantial covered area of 50,000 sq.ft. The project involved meticulous structural planning to ensure the building could handle heavy turbine and compressor loads typical for pharmaceutical manufacturing.
Area: 50,000 sq. feet
Structure: Ground plus two upper storeys (G+2).
Blocks and Expansion Joint: The design consists of two blocks separated by a 75mm expansion joint to accommodate structural movement and prevent damage due to thermal expansion or seismic activity.
Mixed Building System: Utilizes an RCC (Reinforced Concrete Cement) frame for core stability, combined with steel plate design and specialized connections to support machinery loads.
Mezzanine Floors: Incorporated between each floor for optimizing usable space and workflow within the factory.


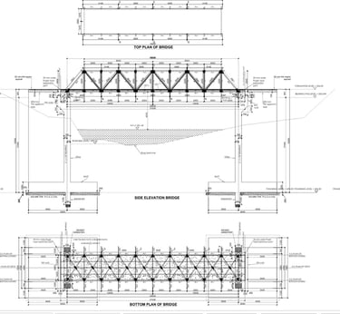
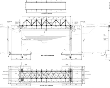
Indoor Badminton Hall
ATC was entrusted with the structural design for an Indoor Badminton Hall at AirForce Station Bareilly, Uttar Pradesh, completed in November 2023. The project, commissioned by MES, included a sound-proof room and an indoor sports facility.
Covered Area: 3,000 sq. feet
Structure: Steel building with Bow String Truss design
Main Truss Span: 12 metres
Columns: Steel columns for optimal load distribution
Safety Engineering: Seismic and wind analysis conducted as per Zone-III regulations, ensuring resilience to local environmental challenges
















Delivering Structural Solutions for Landmark Projects
Location
1st floor Shreeji tower Saharanpur Road, Majra, Dehradun


© 2025. All rights reserved. Designed and Developed by Graphixio.
